Не упусти свой шанс! Последние акции от застройщиков  ▼

Продается 3-комнатная квартира, Сосинская ул., 6

53 000 000 Р

Сосинская ул.6

Дата публикации: 1 октября 2025

Дата обновления: 28 октября 2025

Телефон: 
Показать телефон

+7 (499) 372-92-13

Агентство:  МИЭЛЬ

От застройщика: 0 квартир в продаже

Этаж: 2 / 14

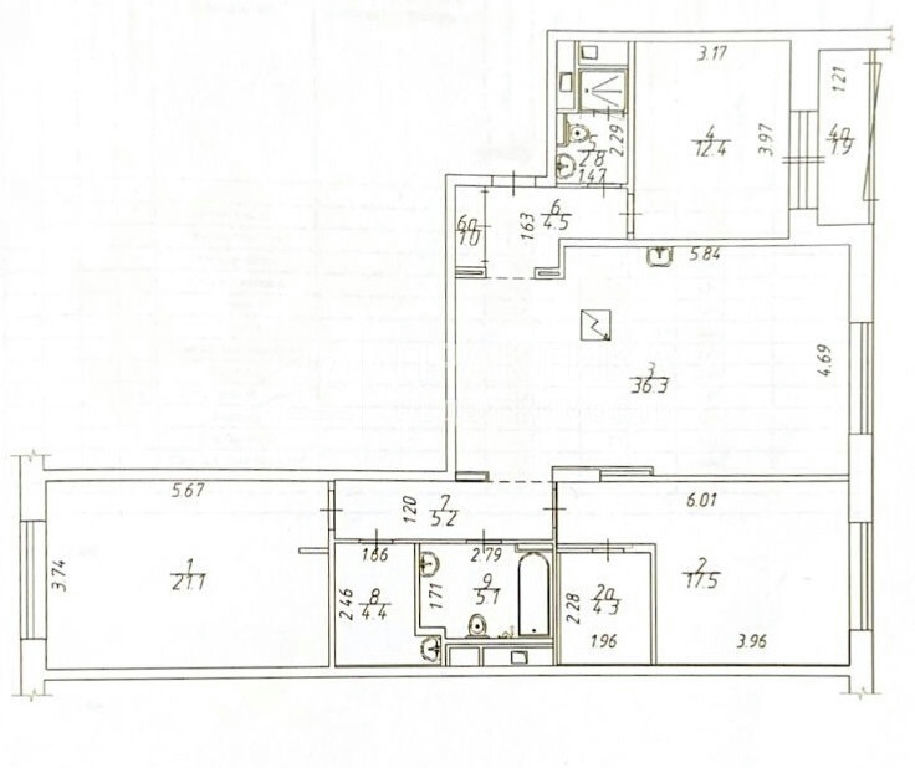
Общая: 119,5 м2

Жилая: 42 м2

Кухня: 36,3 м2

Комнаты: не указано

Балкон/лоджия: лоджия

Лифт: есть лифт

Окна: окна во двор и на улицу

Санузел: совмещенный

Мусоропровод: не указано

Состояние квартиры: дизайнерский ремонт

Тип дома: монолитный

Год постройки: 2015

Территория: огороженная

Парковка: не указано

Статус сделки: продажа

Сделка: прямая продажа

Собственность: не указано

Основание права собственности: не указано

Описание

Код объекта: 1807013. Свободная продажа.Вашему вниманию предлагается просторная светлая и уютная 3-х комнатная квартира в монолитном ЖК "На Симоновском" в ЦАО и непосредственной близости от Таганского парка.В квартире выполнен дизайнерский ремонт с использованием высококачественных материалов. Интерьеры укомплектованы дорогостоящей мебелью и бытовой техникой. В ванных комнатах и на балконе установлен подогрев полов. В квартире проведен мастер-свет, видеонаблюдение и охранная сигнализация.Планировка включает в себя: большую кухню-гостиную 36,3 кв.м., которая станет идеальным местом для совместных ужинов и встреч с друзьями, три изолированные комнаты (21,1 кв.м., 17,5 кв.м. и 12,4 кв.м.) мастер-спальня с гардеробной комнатой, спальня с лоджией и детская с игровой зоной, два полноценных санузла с ванной и душевой кабиной. Просторная хозяйственная (постирочная) комната со стиральной и сушильной машиной. Общая площадь квартиры составляет 119.5 кв.м. с учетом лоджии.У вас будет возможность разместить свою семью с комфортом в отдельных комнатах. В квартире остается вся мебель и бытовая техника в подарок новому владельцу квартиры.Расположение дома и наполнение квартиры дает Вам прекрасную возможность как для собственного проживания, так и для арендного бизнеса.Дом и двор: ЖК "На Симоновском" монолитно-кирпичные дома с винтажным обликом в Таганском районе, современная креативная комфортабельная новостройка, по архитектуре полностью оправдывающая свое название. Для внешней отделки дома применялся натуральный керамический клинкер с рисунком, имитирующим различные способы кладки. В подъездах работают современные лифты. Консьерж. На придомовой территории удачно размещены детские игровые уголки, прогулочные аллеи, баскетбольная коробка и теннисная площадка. Для автомобилистов предусмотрен подземный паркинг, что позволит забыть о проблемах с парковкой. Круглосуточная охрана обеспечивает полную безопасность жильцов. Транспортная доступность: удобная транспортная развязка, станция метро "Пролетарская" и "Крестьянская застава" всего в 5 минутах ходьбы, метро "Волгоградский проспект" в 10 минутах пешком. Рядом Волгоградский проспект и ТТК. В пешей доступности остановки общественного транспорта.Инфраструктура рядом: во дворе шкoлa, дeтcкий caд, супермаркеты, стоматологическая поликлиника, мaгазины, METRO и многое другое. 15 минут пешком дo Таганского пapка и набережной. Развитая инфpacтpуктура, бассейн с морской водой, Ледовый дворец "Морозово", фитнес-клубы.Свободная продажа. Один взрослый собственник, без обременений, полная стоимость в ДКП.Работать с МИЭЛЬ выгодно и надёжно.- покупателю выдаётся Правовой сертификат, гарантирующий юридическую чистоту объекта- возможна ипотека с особыми условиями для клиентов МИЭЛЬ от банков-партнёров, работаем с любыми источниками финансирования (материнский капитал, военный сертификат и т.д.)- бонусы по партнёрским программам МИЭЛЬ на товары и услуги от известных брендов

Квартира на карте

ПанорамыКарта
Спецпредложения
Добавить объявление